Kampinis medinis sodo namelis 260×260 cm su 40 mm sienojais yra kompaktiškas, tačiau itin tvirtas sprendimas sodo sklypui, kai svarbu optimaliai išnaudoti ribotą erdvę. Dėl kampinės konstrukcijos šis modelis puikiai tinka sklypo kampui, prie tvoros ar mažesniems sodams.
40 mm storio sienojai užtikrina stabilumą, ilgaamžiškumą ir geresnes šilumines savybes nei plonesnių sienų statiniai. Padidintas bendras namelio aukštis (apie 275 cm) suteikia daugiau erdvės pojūčio, o 11,9 m³ vidaus tūris leidžia patogiai naudoti namelį kasdieniams poreikiams.
Namelyje sumontuotos vienvėrės klijuotos medienos durys su tikro stiklo įstiklinimu, kurios užtikrina natūralų apšvietimą patalpose. Papildomai komplektuojama stogo ventiliacinė kepurė, leidžianti lengviau reguliuoti oro cirkuliaciją ir sumažinti drėgmės kaupimąsi viduje.
18 mm storio masyvaus medžio stogas suteikia konstrukcijai papildomo tvirtumo ir ilgaamžiškumo. Nerūdijančio plieno durų slenkstis užtikrina patogų įėjimą bei ilgesnį eksploatavimo laiką.
Namelis tiekiamas natūralios medienos, be dažymo ar impregnavimo, todėl galite patys pasirinkti pageidaujamą spalvą ar apsaugines priemones.
Grindys šiam modeliui yra užsakomos papildomai. Svarbu atkreipti dėmesį, kad pamatinės sijos įeina į komplektą tik tuo atveju, jei namelis užsakomas kartu su grindimis. Kai montavimą atliekame mes, grindų konstrukcija pritaikoma montavimui ant gręžtinių polių, kas ypač aktualu nelygaus reljefo sklypuose.
Kampinio medinio sodo namelio privalumai
-
Kompaktiška kampinė forma – idealu mažiems sklypams
-
40 mm storio sienojai – didesnis stabilumas ir ilgaamžiškumas
-
Stogo ventiliacinė kepurė geresnei oro cirkuliacijai
-
Galimas montavimas ant gręžtinių polių
-
Universalus pritaikymas: sandėliavimui, darbo vietai ar poilsiui
Techniniai duomenys
-
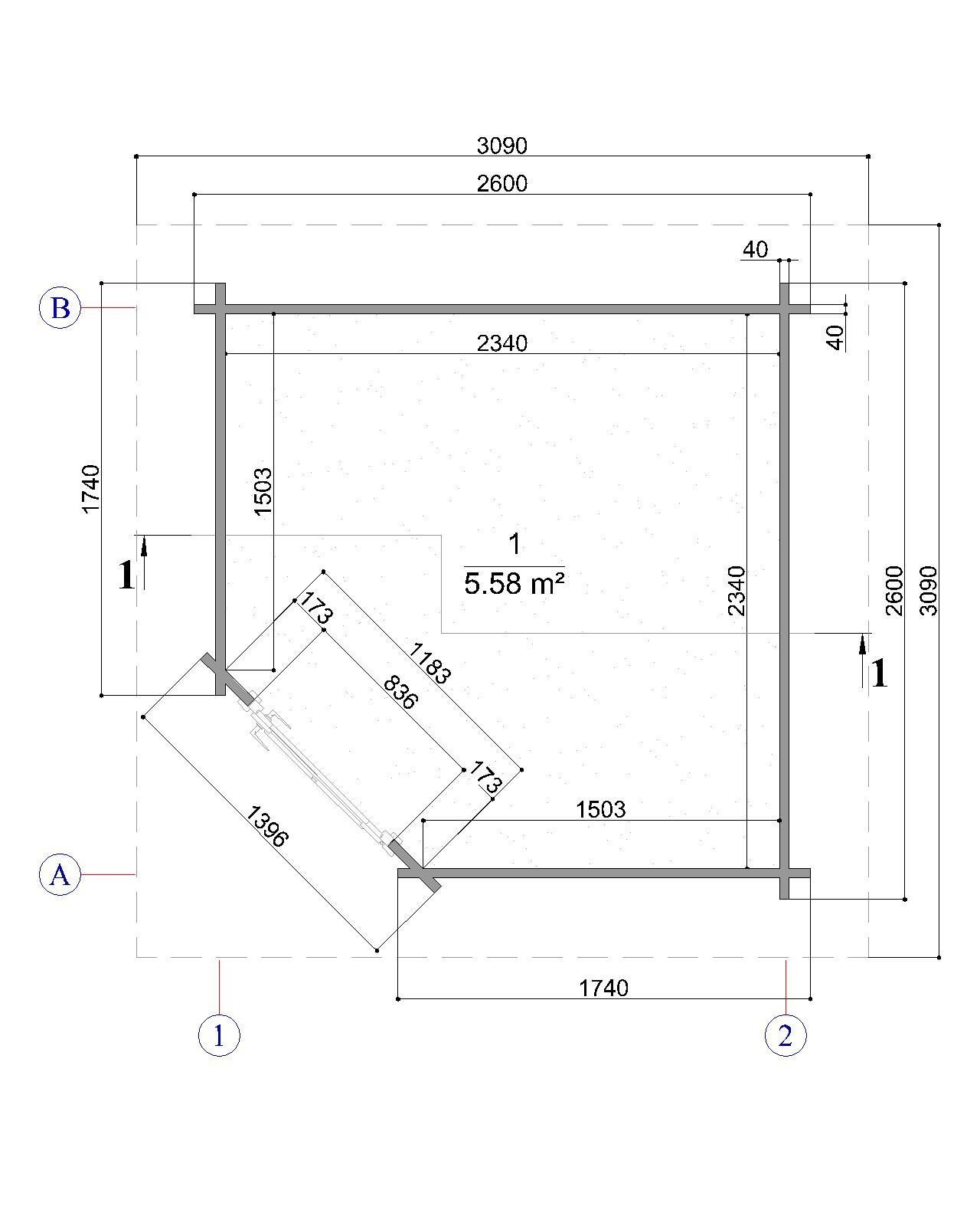
Bohlenmaße: 260 × 260 cm
-
Išoriniai sienų matmenys: 242 × 242 cm
-
Sienojų storis: 40 mm
-
Šoninių sienų aukštis: ~215 cm
-
Bendras aukštis: ~275 cm
-
Grindų plotas: ~5,05 m²
-
Vidaus tūris: ~11,9 m³
-
Stogo plotas: ~10,0 m²
-
Stogas: 18 mm masyvi mediena
-
Durys: 81 × 187 cm, vienvėrės, klijuota mediena, tikras stiklas
-
Durų slenkstis: nerūdijančio plieno
-
Ventiliacija: stogo ventiliacinė kepurė
-
Tiekiamas: natūralios medienos, be dažymo
-
Grindys: neįeina (užsakomos papildomai)
-
Pamatinės sijos: tik užsakant kartu su grindimis
Pristatymas ir montavimas
-
Gamybos ir pristatymo terminas: apie 6–8 savaitės
-
Galimas montavimas ant gręžtinių polių
-
Jei leidžia oro sąlygos – galimas montavimas žiemos metu
NAUDINGA:
Pamatų įrengimo būdai:
https://dekosodas.lt/mediniu-nameliu-is-sienoju-surenkamu-pamatu-darymo-budai/
Namelio surinkimo video:
https://dekosodas.lt/video-kaip-pasistatyti-medini-nameli-magde-5×4-m-is-44-mm-sienoju-ant-isukamu-poliu/




















