WESTEN – tai klasikinio dizaino, tvirtas medinis sodo namelis, puikiai tinkantis kaip poilsio vieta, sandėliukas įrankiams ar nedidelis darbo kabinetas sode. Pagamintas iš 44 mm storio medinių sienojų, namelis užtikrina gerą šilumos izoliaciją ir ilgaamžiškumą.
✅ Techninė informacija:
-
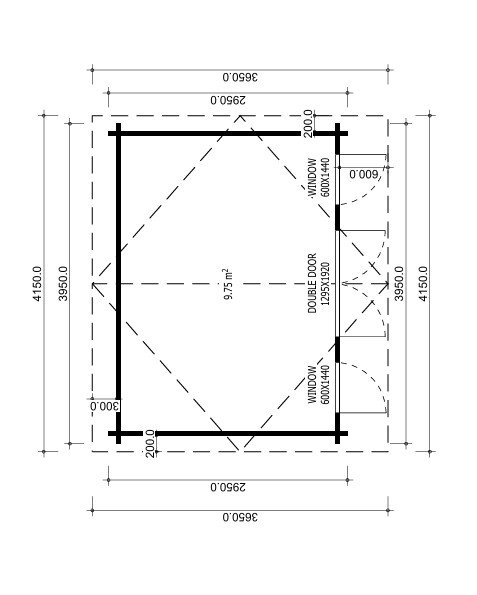
Išoriniai matmenys: 3.95 x 2.95 m
-
Pamato matmenys: 3.75 x 2.75 m
-
Vidaus plotas: 9.75 m²
-
Šoninių sienų aukštis: 2.10 m
-
Bendras aukštis: 2.50 m
-
Stogo nuolydis: 12.2°
-
Sienų storis: 66 mm
✅ Konstrukcija ir komplektacija:
-
Stogo danga: 19 mm storio medinės lentos
-
Durys ir langai: priklauso nuo pasirinkto modelio komplektacijos
-
Spyna, montavimo medžiagos ir išsami surinkimo instrukcija – įskaičiuota
-
Namukas pristatomas natūralios, neimpregnuotos medienos
🪵 Grindys:
Grindys į kainą neįtrauktos, tačiau galite užsisakyti papildomai:
-
19 mm arba 28 mm storio
-
Dėl kainos teirautis atskirai
🚛 Pristatymas ir papildomos paslaugos:
-
Pristatymas visoje Lietuvoje – pagal kilometrus
-
Galimos papildomos paslaugos:
-
Polinių pamatų įrengimas
-
Namelio surinkimas vietoje
-

















