Atraskite dar erdvesnį ir tvirtesnį medinį sodo namelį TERADO 6×5 m, pagamintą iš aukštos kokybės 40 mm storio medienos.
Tai puikus pasirinkimas tiems, kurie ieško didesnio vasarnamio poilsiui, darbui ar svečių apgyvendinimui. TERADO modelis išsiskiria moderniu dizainu, praktišku vidaus išplanavimu ir galimybe pritaikyti pagal individualius poreikius.
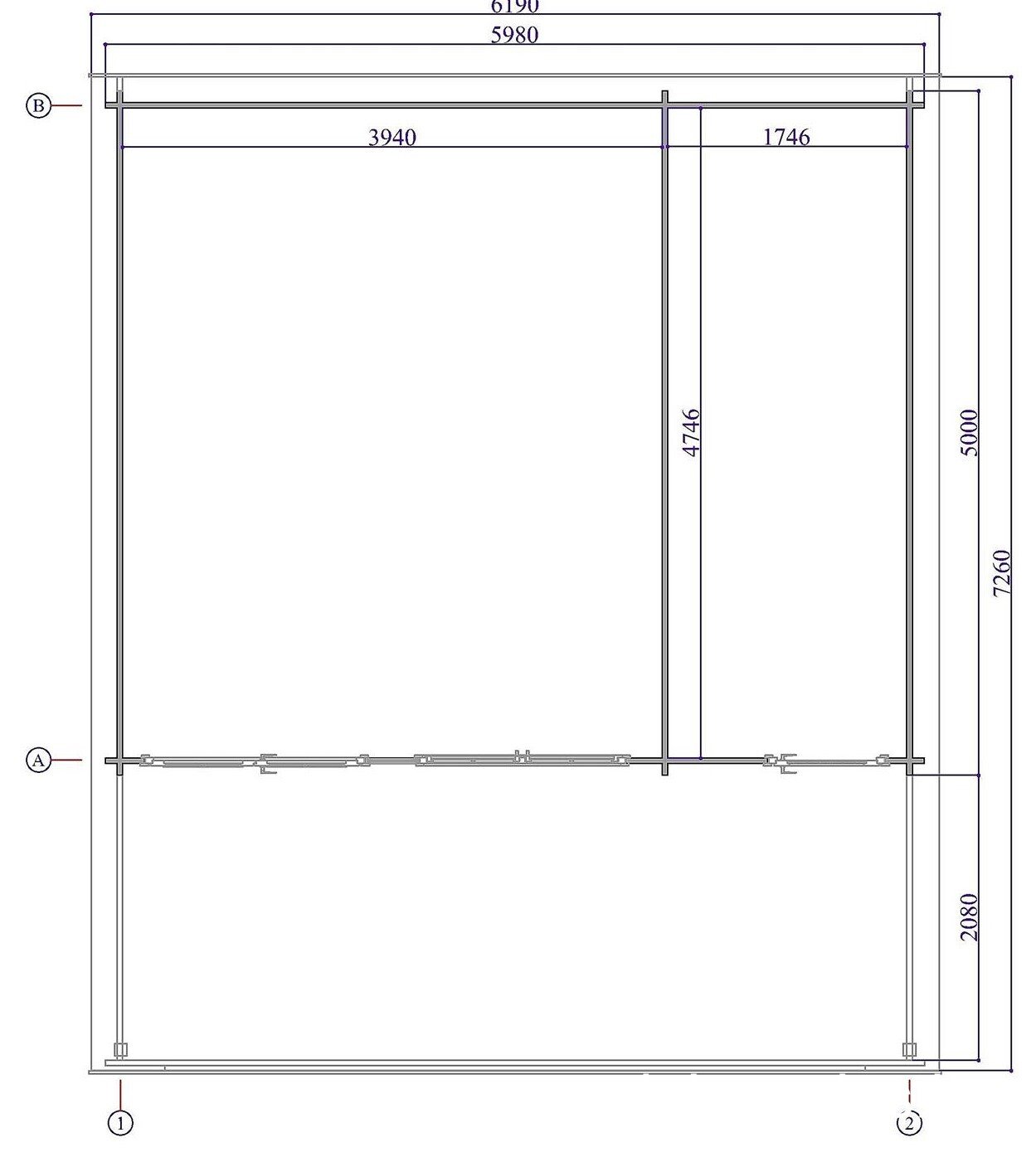
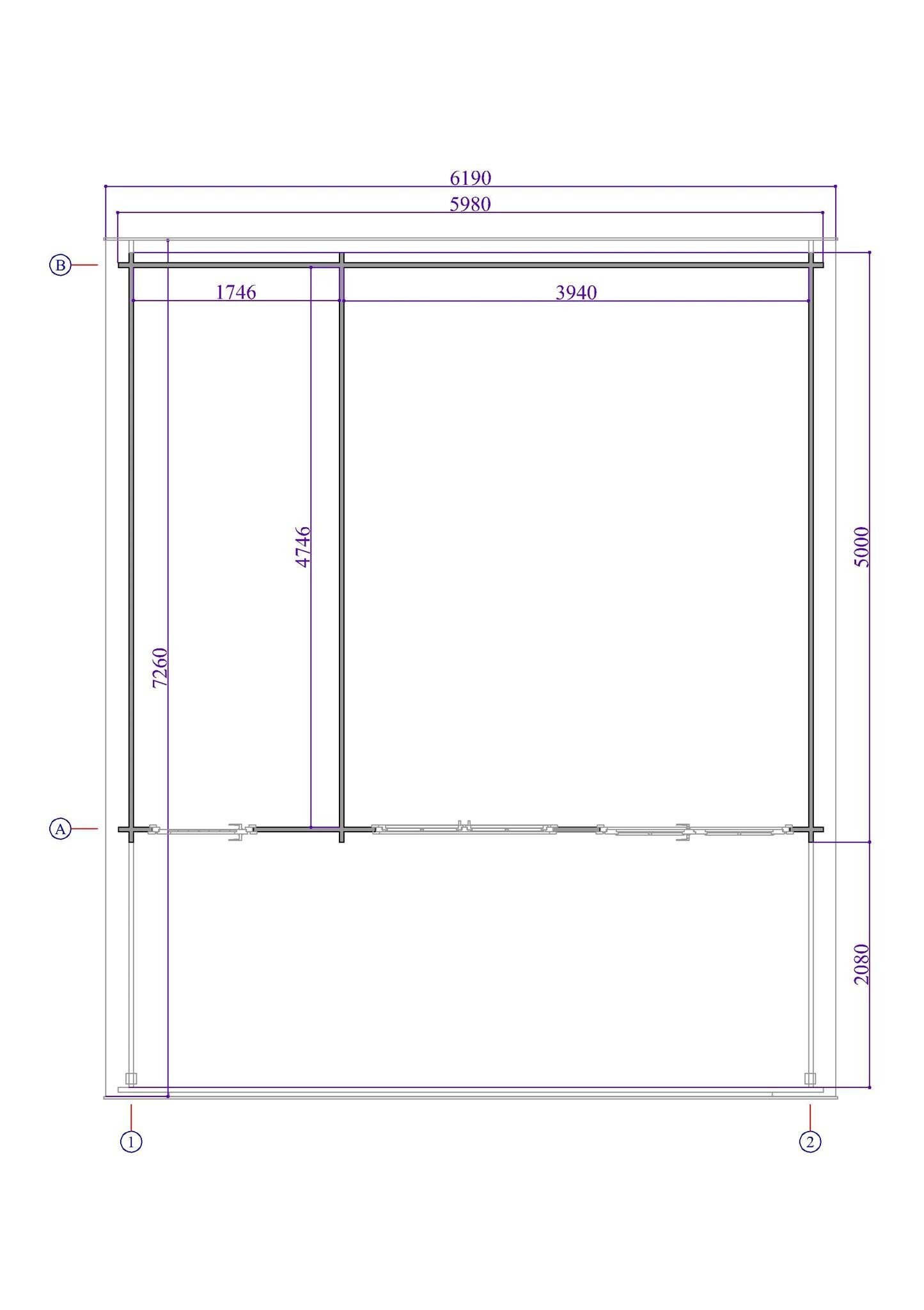
Namelis turi du įėjimus – dvivėres ir vienvėres duris, erdvų vidų bei stoginę, kuri puikiai tinka kaip terasa ar pavėsinė.
Dėl tvirtos konstrukcijos ir kokybiškų detalių šis modelis garantuoja ilgaamžiškumą bei estetinį vaizdą jūsų kieme ar sodyboje.
🌿 Pagrindiniai privalumai
-
Storos 40 mm sienos – tvirtas ir šilumą sulaikantis statinys
-
18,7 m² vidaus plotas + 8,3 m² stoginė / terasa
-
Aukštos kokybės klijuotos medienos durys ir langai
-
Tikro stiklo langai (Echtglas) – patikimi ir ilgaamžiai
-
Stogas iš 18 mm masyvios medienos lentų
-
Galimybė komplektuoti grindis (18 arba 28 mm)
-
Paprastas surinkimas, aiški instrukcija
-
Gali būti montuojamas veidrodiniu principu
📐 Techniniai duomenys
| Parametras | Reikšmė |
|---|---|
| Išoriniai matmenys | 600 × 500 cm |
| Sienų storis | 40 mm |
| Vidiniai išmatavimai | 582 × 482 cm |
| Vidaus plotas | apie 18,7 m² + 8,29 m² stoginė |
| Bendras aukštis | apie 270 cm |
| Šoninės sienos aukštis | apie 200 cm |
| Stogelis virš įėjimo | apie 210 cm |
| Stogo plotas | apie 45,4 m² |
| Durys | Dvivėrės – 156 × 187 cm, Vienvėrės – 81 × 187 cm |
| Langas | 150 × 99 cm, atverčiamas / atidaromas |
| Stogo lentos | 18 mm masyvi mediena |
| Langų stiklas | Tikras stiklas (Echtglas) |
| Komplekte | Sturmleisten, cilindrinė spyna, rankenos, nerūdijančio plieno slenkstis, instrukcija |
| Spalva | Natūrali mediena, be dažymo |
| Montavimas | Galimas veidrodiniu principu |
| Pamato tašai | Įtraukiami tik su grindų komplektu |
🛠️ Komplektacijoje
-
Masyvios medienos stogas (18 mm)
-
Tikro stiklo (Echtglas) langų ir durų įstiklinimas
-
Klijuotos medienos durys ir langai su apvadais
-
Nerūdijančio plieno slenkstis patogiam įėjimui
-
Tvirtinimo detalės ir aiški montavimo instrukcija
-
Galimybė veidrodiniam surinkimui
⚠️ Grindys į komplektaciją neįtrauktos.
Galima užsisakyti papildomai: 18 mm arba 28 mm storio grindis (kaina pagal užklausimą).
Jei planuojate namelį montuoti patys, rasite informaciją apie pamato paruošimo būdus –
👉 (čia bus įdedamas nuorodos laukas į straipsnį arba video gidą)
🚚 Pristatymas
Pristatymas mokamas papildomai, apskaičiuojamas pagal atstumą iki objekto.
Užsakymus pristatome visoje Lietuvoje greitai ir patikimai.
🏕️ Pritaikymas
✔ Vasarnamis prie ežero ar sode
✔ Svečių namelis ar poilsio zona
✔ Dirbtuvės ar hobio erdvė
✔ Sodo ofisas ar sandėliavimo pastatas


























