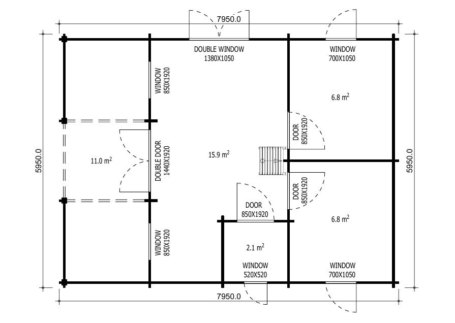
LORA medinis vasarnamis – tai modernus ir erdvus sodo namelis, skirtas ieškantiems komforto ir funkcionalumo viename. Šis namelis išsiskiria trimis atskirais kambariais, papildoma antresole bei erdvia 11 m² terasa, kurioje galėsite mėgautis rytine kava ar poilsiu gamtos apsuptyje.
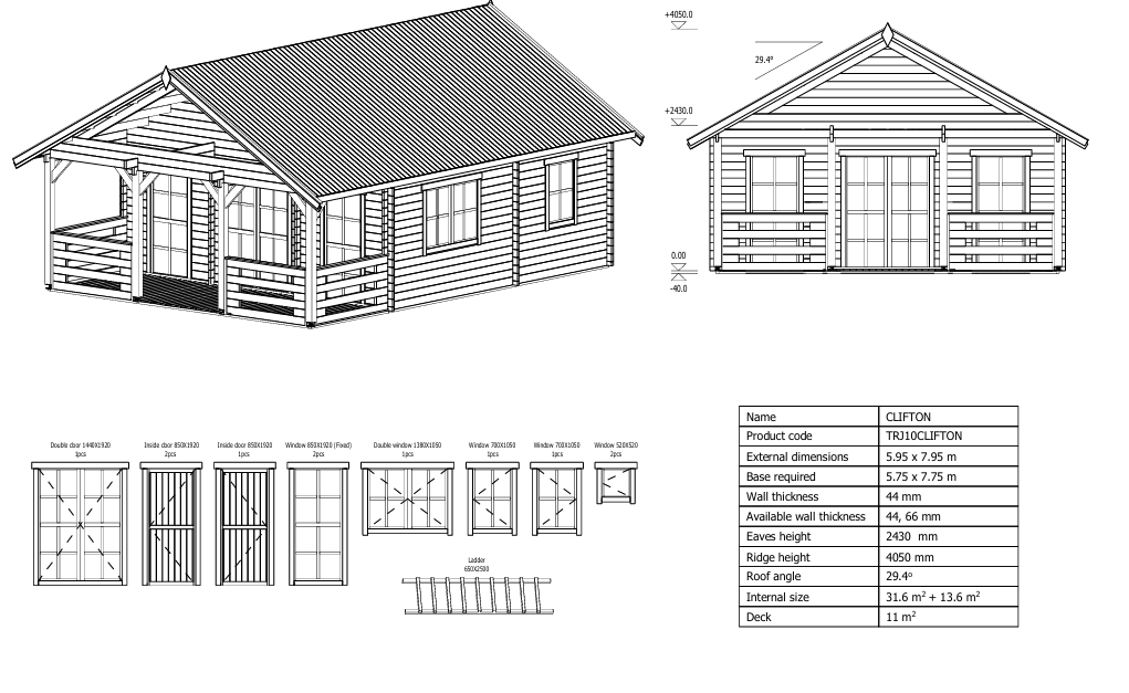
Pagamintas iš aukštos kokybės medienos, vasarnamis LORA pasižymi 44 mm storio sienomis, užtikrinančiomis puikią šilumos ir garso izoliaciją. Tvirtos konstrukcijos stogas su 29,4° kampu suteikia ne tik išskirtinį estetinį vaizdą, bet ir puikų atsparumą sniegui bei lietui.
Šis modelis puikiai tinka tiek kaip poilsio namelis, tiek kaip mini vasarnamis su galimybe įsirengti miegamą zoną antresolėje bei darbo ar svečių kambarius pagrindinėje dalyje.
📐 Techninė informacija:
-
Išoriniai matmenys: 595 x 795 cm
-
Pamato matmenys: 575 x 775 cm
-
Vidaus plotas: 31.6 m² + antresolė
-
Terasa: 11.0 m²
-
Sienų storis: 44 mm
-
Šoninės sienos aukštis: 2.43 m
-
Aukštis aukščiausiame taške: 4.05 m
-
Stogo nuolydis: 29.4°
📌 Komplektacija:
-
Aukštos kokybės mediena – eglė/pušis
-
44 mm storio sienojai
-
Medinės durys ir langai su stiklo paketais
-
Stogo lentos – 18 mm
-
Terasos konstrukcija
-
Montavimo instrukcija
-
Montavimo komplektas (tvirtinimai)
-
Pristatymas iki Jūsų adreso (pagal km)
🛠️ Papildomai galima įsigyti:
-
Grindys (19 mm arba 28 mm)
-
Impregnavimas, dažymas
-
Stogo danga
-
Surinkimo paslauga
-
Vidaus pertvaros pagal poreikį
✅ Kodėl verta rinktis šį sodo namelį?
-
Tvirta konstrukcija iš kokybiškos medienos
-
Puikus išplanavimas – 3 kambariai + antresolė
-
Erdvi terasa poilsiui ar vakarėliams
-
Gali būti pritaikytas gyvenimui šiltuoju metų laiku
-
Praktiškas sprendimas sodui, sodybai ar sklypui
-
Galimybė individualiai pritaikyti projektą


















