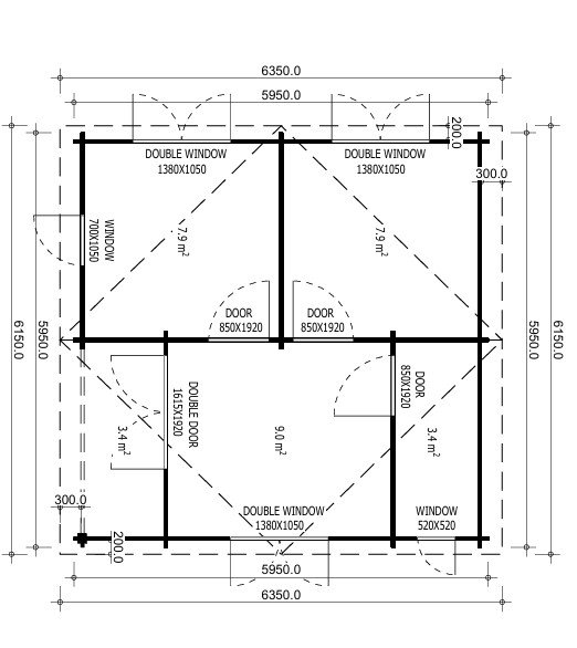
Namelis „Romena“ – tai erdvus ir funkcionalus medinis sodo namelis, kuris puikiai tinka poilsiui, darbui ar hobio veiklai. Namelio išmatavimai 5,95 × 5,95 m, vidaus plotas – 28,2 m², o terasa 3,4 m² suteikia papildomą erdvę poilsiui lauke. Šoninės sienos aukštis – 2,16 m, o stogo aukščiausia vieta siekia 3,24 m su 20,6° stogo nuolydžiu, užtikrinančiu efektyvų vandens nuvedimą.
Namelis pagamintas iš 66 mm storio medinių sienų, kas garantuoja tvirtumą ir atsparumą įvairioms oro sąlygoms. Grindys neįeina į bazinę kainą, tačiau galima pasirinkti papildomas 18 mm arba 28 mm grindis kad būtų užtikrintas maksimalus komfortas.
Papildomos galimybės:
-
Pristatymas pagal atstumą – patogiai pristatysime namelį tiesiai į jūsų sodybą.
-
Įgręžiami poliai – užtikrina stabilų pamato sprendimą.
-
Surinkimo paslaugos – profesionalus namelio surinkimas jūsų vietoje.
Namelis „Romena“ – idealus sprendimas tiems, kurie ieško kokybiško, tvirto ir estetiško medinio namelio, kurį galima pritaikyti tiek sodyboje, tiek nuosavoje teritorijoje.
Pamato ir surinkimo rekomendacijos:

















