Stilingas ir erdvus kampinis medinis sodo namelis, pagamintas iš tvirtų 40 mm sienojų. Puikus pasirinkimas norintiems kokybiškos, ilgaamžės ir funkcionalios erdvės savo sklype. Dėl kampinio išdėstymo namelis puikiai išnaudoja kampinę zoną kieme, suteikdamas daug vietos viduje ir maksimalų šviesos patekimą.
Tinka naudoti kaip:
• poilsio namelis
• darbo / hobio erdvė
• sodo sandėliukas
• vasarnamis
• sezoninis mini ofisas ar studija
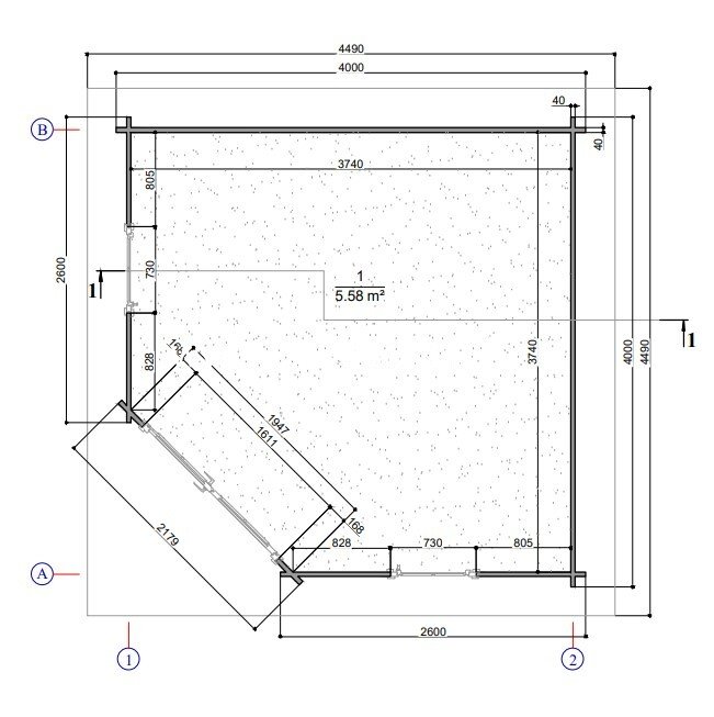
📐 Techniniai duomenys
-
Sienų storis: 40 mm
-
Matmenys (Bohlenmaße): 400 × 400 cm
-
Išoriniai sienų matmenys: 382 × 382 cm
-
Stogo iškyša: ~25 cm
-
Šoninės sienos aukštis: ~215 cm
-
Bendras aukštis: ~310 cm
-
Pagrindo plotas: ~14,50 m²
-
Tūris: 33,4 m³
-
Stogo plotas: ~21,90 m²
🚪 Langai ir durys
-
Klijuotos medienos dvivėrės durys: 156 × 187 cm
-
Langas: 73 × 143 cm
-
Tikro stiklo įstiklinimas (Echtglas)
-
Langas su Dreh-/Kipp varstymo mechanizmu
-
Nerūdijančio plieno žemas slenkstis
-
Cilindrinė spyna ir rankenų komplektas
📦 Komplektacija
-
Tvirtas masyvus stogas – 18 mm
-
Tikro stiklo langai ir durys
-
Aukštos kokybės klijuotos medienos durys
-
Langų ir durų furnitūra
-
Cilindrinė spyna
-
Dachhaube (stogo viršutinė detalė)
-
Montavimo reikmenys
-
Detali surinkimo instrukcija
-
Natūrali, nedažyta mediena
Svarbu:
👉 Pamatiniai tašai įskaičiuoti tik jei renkatės modelį su grindimis.
👉 Grindys – pasirenkamos (už papildomą mokestį).
🔧 Papildomos paslaugos (pagal užsakymą)
-
pilnas namelio surinkimas
-
polių sukimai (gręžtiniai arba metaliniai poliai)
-
terasos įrengimas prie namelio
🧱 Naudinga informacija apie pamatus ir surinkimą
🔹 Pamatų įrengimo būdai:
https://dekosodas.lt/mediniu-nameliu-is-sienoju-surenkamu-pamatu-darymo-budai/
🔹 Video – kaip patiems surinkti namelį iš sienojų:
https://dekosodas.lt/video-kaip-pasistatyti-medini-nameli-magde-5×4-m-is-44-mm-sienoju-ant-isukamu-poliu/




















