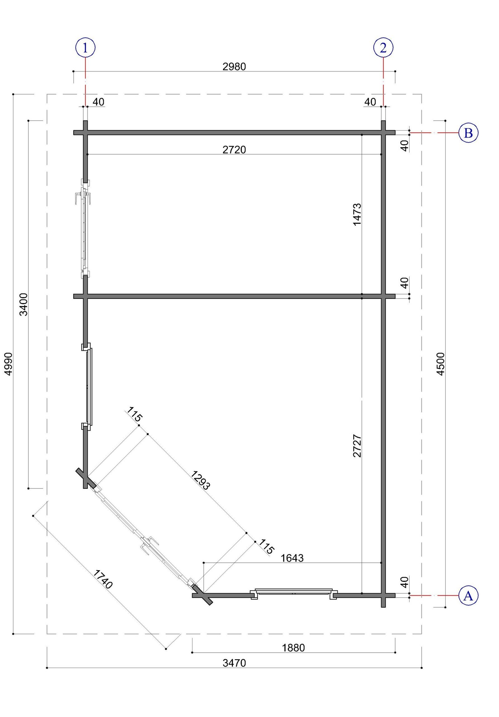
Kampinis medinis sodo namelis 450×298 cm, pagamintas iš tvirtų 40 mm sienojų – tai puikus pasirinkimas tiems, kurie nori viename statinyje turėti jaukią poilsio zoną ir funkcionalų sandėliuką. Dėl kompaktiškos kampinės formos namelis idealiai tinka mažesniems sklypams, prie terasų, šalia takelių ar sodo kampuose, kur įprasti modeliai netelpa.
Pagrindinė patalpa – apie 6,7 m² – puikiai tinka poilsiui, darbui, arbatos gėrimui, mini ofisui, vasarnamiui ar vaikų žaidimų erdvei.
Šalia esantis 4 m² sandėliukas – atskiras ir labai patogus, suteikia vietos įrankiams, dviračiams, skardinėms, griliui, lauko baldams ar sezoniniams daiktams.
Namelio konstrukcija itin kokybiška:
-
40 mm sienojai užtikrina stabilumą ir ilgaamžiškumą
-
18 mm masyvaus medžio stogas
-
Tikro stiklo langas su atvėrimo/vertikaliu pakėlimo mechanizmu
-
Klijuotos medienos dvivėrės durys su žemu nerūdijančio plieno slenksčiu
-
Cilindrinė spyna saugumui
-
Galima rinktis ir grindis su fundamentiniais balkiais
Natūralios medienos paviršius leidžia pasirinkti bet kokią spalvą ar impregnavimą, lengvai pritaikant namelį prie jūsų aplinkos stiliaus.
Tai puikus pasirinkimas tiems, kurie ieško dviejų erdvių kampinio sodo namelio, puikiai tinkamo tiek vasarnamiui, tiek sandėliavimui.
Techniniai duomenys
-
Matmenys: 450×298 cm
-
Sienojų storis: 40 mm
-
Išoriniai matmenys: 432×280 cm
-
Stogelis: ~25 cm
-
Sienų aukštis: 215 cm
-
Bendras aukštis: 275 cm
-
Patalpų plotai: ~6.7 m² + ~4.0 m²
-
Kubatura: 16.37 + 9.37 m³
-
Stogo plotas: ~20.50 m²
-
Dvivėrės durys: 122×187 cm
-
Langas: 73×143 cm (Dreh/Kipp – atidaromas ir pakeliamas)
-
Stogas: 18 mm masyvo lentos
-
Tiekiama natūraliai, neimpregnuota
-
Grindys – pasirenkamos papildomai
NAUDINGA:
👉 Pamato įrengimo būdai:
https://dekosodas.lt/pamatu-irengimo-budai-mediniams-nameliams/
👉 Namelio surinkimo video:
https://dekosodas.lt/medinio-namelio-surinkimo-video/



























