Kokybiškas ir stilingas sodo namelis DELINA (395×295 cm) su 44 mm storio sienomis – puikus pasirinkimas poilsiui, sandėliavimui ar dirbtuvėms. Patogus išplanavimas, klasikinis stogas, natūrali mediena – viskas, ko reikia funkcionaliam kampeliui jūsų kieme.
Detali informacija:
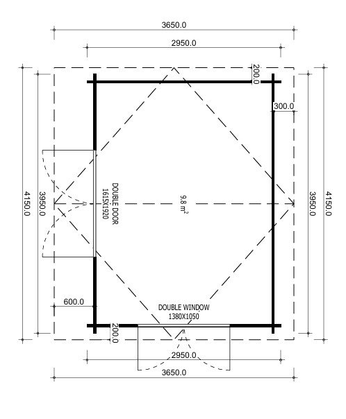
✅ Išmatavimai:
-
Namelio matmenys: 3.95 x 2.95 m
-
Pamato matmenys: 3.75 x 2.75 m
-
Vidaus plotas: ~9.8 m²
✅ Konstrukcija:
-
Sienų storis: 44 mm (iš natūralios spygliuočių medienos)
-
Šoninių sienų aukštis: 2.03 m
-
Aukštis stogo krašte: 2.43 m
-
Stogo nuolydis: 12.2°
-
Stogas: medžio masyvo lentos
✅ Kiti privalumai:
-
Aukštos kokybės dvivėrės medinės durys su stiklais
-
Natūrali, neimpregnuota mediena – galima dažyti ar impregnuoti norima spalva
-
Galimybė papildomai įsigyti grindis (19 mm arba 28 mm storio)
-
Aiški ir detali surinkimo instrukcija
-
Galima veidrodinė konstrukcija (dėl durų vietos pakeitimo pasitarti iš anksto)
-
Komplekte yra pamato tašeliai sienoms montuoti
📦 Pristatymas:
-
Pristatymas visoje Lietuvoje pagal kilometražą (susisiekite dėl tikslaus skaičiavimo)
-
Pristatymo terminas priklauso nuo sandėlio likučio – teirautis
🔨 Papildomos paslaugos:
-
Grindų įsigijimas (pasirinktinai)
-
Pamatų paruošimas ar įsukami poliai – pagal individualų susitarimą
-
Galime suprojektuoti ir kitą modelį pagal jūsų poreikius

















