„Minero Grande“ – tai didelis, modernus ir funkcionalus medinis sodo namas su dviem atskiromis erdvėmis, puikiai tinkantis tiek poilsiui, tiek sandėliavimui, darbui, sporto zonai ar svečių nameliui. Šio modelio konstrukcija pagaminta iš aukštos kokybės 40 mm sienojų, todėl namelis tvirtas, stabilus ir ilgaamžis.
Namelio bendras plotas – net 26,99 m² (18,70 m² + 8,29 m²), todėl čia užtenka vietos įsirengti pagrindinę poilsio zoną ir papildomą patalpą – dirbtuvėms, sandėliui, dviračiams ar net mini kabinetui. Toks išplanavimas ypač mėgstamas tų, kuriems reikia vieno universalaus pastato kelioms funkcijoms.
Priekyje esantis 50 cm stogelis suteikia papildomą apsaugą nuo lietaus, o žema nerūdijančio plieno slenkstinė juosta leidžia patogiai įeiti ir išvežti daiktus.
Langas su atvėrimo ir pakėlimo funkcija užtikrina gerą ventiliaciją, o tikro stiklo paketai suteikia šilumos ir ilgaamžiškumo.
Komplekte – visa aukštos kokybės įranga:
-
40 mm storio sienojai
-
Masyvus 18 mm stogas
-
Tikro stiklo langai
-
Klijuotos medienos dvivėrės durys ir vienvėrės durys
-
Sprosiniai langų ir durų rėmai
-
Vientisas cilindrinės spynos komplektas
-
Sturmleisten vėjo apsaugai
-
Veidrodinis surinkimas galimas pagal poreikį
Namelis pristatomas natūralios spalvos, todėl gali būti dažomas, impregnuojamas arba tonuojamas pagal jūsų sklypo stilistiką.
Puikus pasirinkimas, jei reikia didelio dvipatalpio medinio namo su moderniu dizainu ir aukšta surinkimo kokybe.
Techniniai duomenys
-
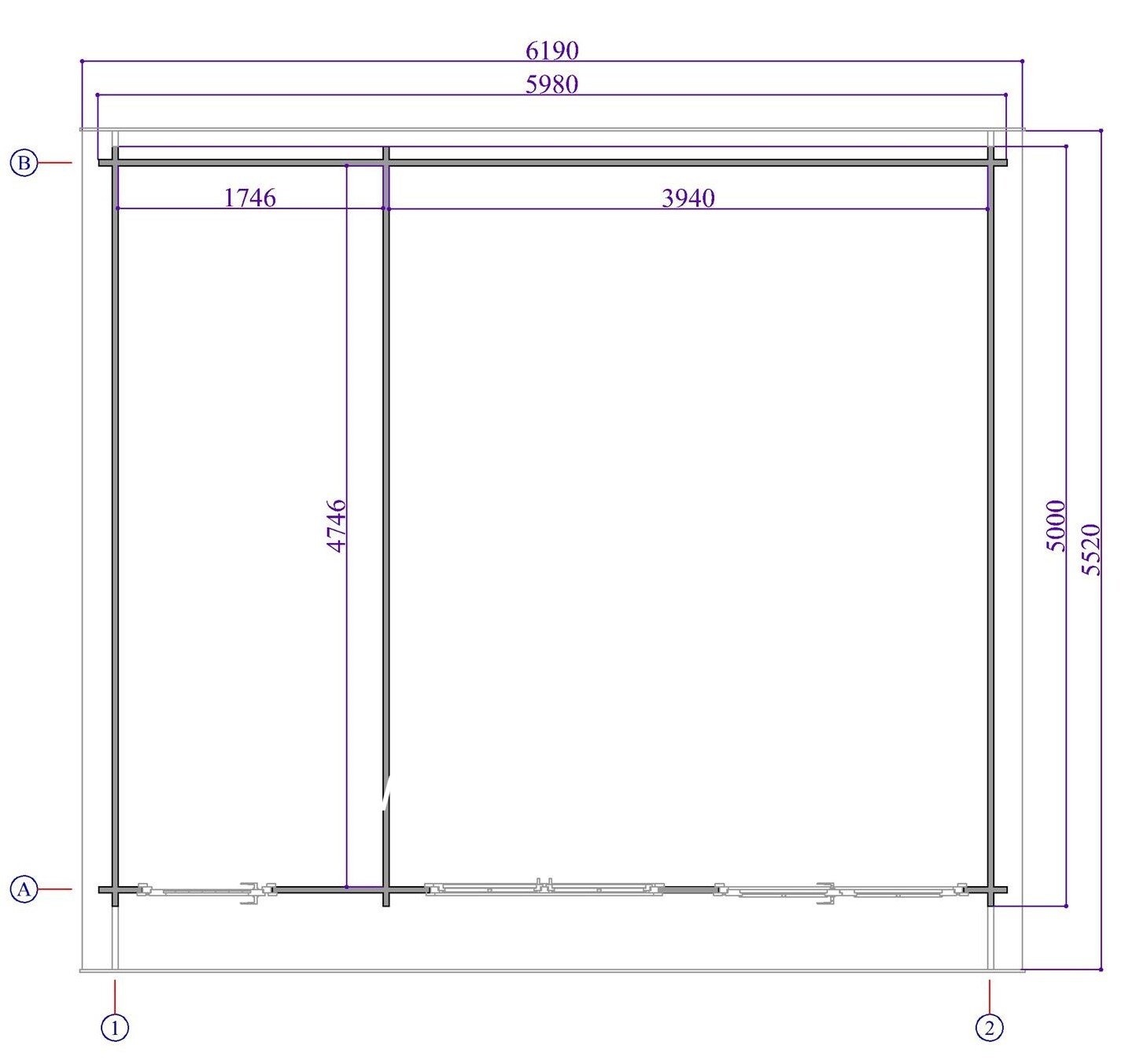
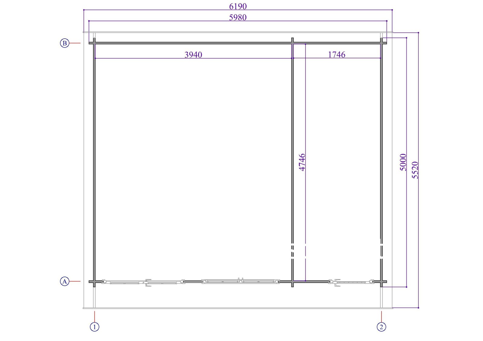
Matmenys: 600×500 cm
-
Sienojų storis: 40 mm
-
Išoriniai matmenys: 582×482 cm
-
Stogelis: ~50 cm
-
Sienų aukštis: 200 cm
-
Bendras plotas: 18.70 m² + 8.29 m²
-
Kubatura: 43.23 m³ + 17.82 m³
-
Stogo plotas: ~34.70 m²
-
Dvivėrės durys: 156×187 cm
-
Vienvėrės durys: 81×187 cm
-
Langas: 150×99 cm, atveriamas/kilnojamas
-
Stogas: 18 mm masyvios lentos
-
Stiklas: tikras stiklas
-
Pristatoma natūraliai, be dažymo
-
Gali būti surinktas veidrodiniu principu
NAUDINGA:
👉 Pamato įrengimo būdai:
https://dekosodas.lt/pamatu-irengimo-budai-mediniams-nameliams/
👉 Namelio surinkimo video:
https://dekosodas.lt/medinio-namelio-surinkimo-video/






























