MIRANDO – tai modernus medinis sodo namelis su integruota stogine, sukurtas praktiškiems sprendimams Jūsų kieme. Šis 45 mm sienų storio statinys susideda iš dviejų atskirų zonų – uždaro namelio ir atviros stoginės, puikiai tinkančios automobiliui, dviračiams, malkoms arba lauko poilsio erdvei.
Aliuminio stumdomos durys, dideli langai ir aukštos kokybės konstrukcija garantuoja ne tik ilgaamžiškumą, bet ir estetinį modernumą. Šis sodo namelis – puikus pasirinkimas ieškantiems funkcionalumo, dizaino ir patikimumo viename.
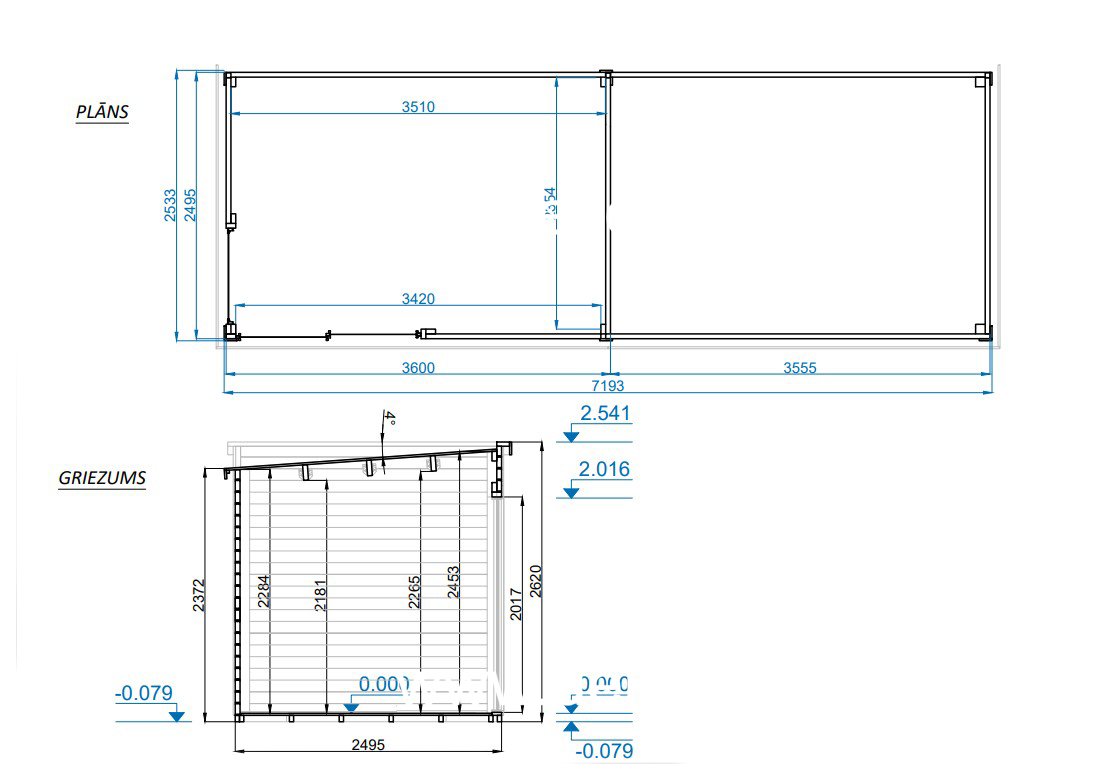
✅ Techninė informacija:
-
Matmenys: 360 x 250 + 360 x 250 cm
-
Sienų storis: 45 mm
-
Pagrindo plotas: ~8.25 + 8.25 m²
-
Bendras tūris: 19.6 m³
-
Stogo plotas: ~17.84 m²
-
Šoninių sienų aukštis: ~230 / 250 cm
-
Bendras aukštis: ~260 cm
-
Stogo iškyša: apie 9 cm
✅ Langai ir durys:
-
1 x stumdomos aliuminio durys: 174 x 202 cm (2 elementai)
-
1 x vitrininis langas: 90 x 202 cm (aliuminio rėmas)
✅ Komplekte:
-
Medinis stogas – 18 mm storio
-
ISO ESG saugus stiklas
-
Antracito spalvos aliuminio durys
-
Spyna su raktu
-
Montavimo instrukcija ir furnitūra
-
Fundamentiniai tašai sienoms
-
Pristatoma natūralios medienos, be dažymo
🪵 Grindys:
Grindys į kainą neįskaičiuotos. Galima užsakyti papildomai:
-
19 mm arba 28 mm storio medines grindis – teirautis dėl kainos
🚚 Pristatymas ir papildomos paslaugos:
-
Pristatymas visoje Lietuvoje – pagal km
-
Papildomos paslaugos:
-
Polinių pamatų įrengimas
-
Namelio surinkimas jūsų sklype
-





















